Sprungziele

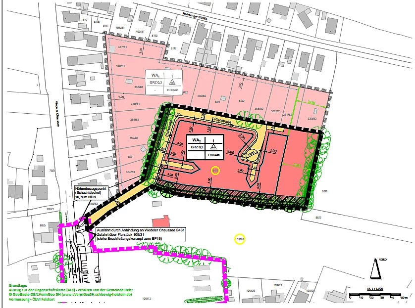
B-Plangebiet Nr. 20 "Am Säberg"

Die Erschließungsarbeiten zum B-Plangebiet Nr. 20 in der Gemeinde Heist sind abgeschlossen. Auf dieser Seite finden Sie wichtige Unterlagen bzw. Informationen zum Baugebiet.

Vermessung der Baugrundstücke:

Die Vermessungsarbeiten sind abgeschlossen.

Bauanträge:

Bauanträge können ab sofort eingereicht werden. Bitte beachten Sie, dass Bauanträge in dreifacher Ausfertigung beim Kreis Pinneberg eingereicht werden müssen.

Bitte beachten Sie zur Bauantragstellung auch die mit dem Kreis Pinneberg (Baugenehmigungsbehörde) abgestimmten nachfolgenden Hinweise:

  1. Die 1. Änderung des B-Planes Nr. 20 wird bei der Entscheidung der Baugenehmigungsbehörde (Kreis Pinneberg) nicht berücksichtigt.
  2. Die Einreichung von Genehmigungsfreistellungen sind in diesem Baugebiet nicht möglich.
  3. Bei Einreichung von Genehmigungsfreistellungen muss die Überleitung ins vereinfachte Baugenehmigungsverfahren durch die Gemeinde/das Amt erklärt werden.
Begründung:

Für das Baugebiet „Am Säberg“ existiert der B-Plan Nr. 20 und die 1. Änderung des B-Planes Nr. 20.

Aufgrund eines Gerichtsurteils des Bundesverwaltungsgerichts vom 18.07.2023 (BVerwG 4 CN 3.22) zu einem vergleichbaren B-Plan einer anderen Kommune kann die 1. Änderung des B-Planes Nr. 20 nicht angewendet werden. Entscheidungsgrundlage ist daher der Ursprungsplan.

Aus diesem Grund ist die Einreichung einer Genehmigungsfreistellung nicht möglich.

Mit der Unteren Bauaufsicht des Kreises Pinneberg wurde abgestimmt, dass Bauanträge im vereinfachten Baugenehmigungsverfahren entschieden werden.

Für Sie als Bauherr/in ergeben sich in Bezug auf die Planung des Neubaus keine Änderungen. Bei einem vereinfachten Baugenehmigungsverfahren beträgt die gesetzliche Bearbeitungsfrist bis zu 3 Monate (bei einer Genehmigungsfreistellung bis zu 4 Wochen).

Entwässerungsanträge:

Entwässerungsanträge für die Schmutzwasserbeseitigung reichen Sie bitte beim AZV Südholstein, Am Heuhafen 2, 25491 Hetlingen ein.

Entwässerungsanträge für die Niederschlagswasserentsorgung reichen Sie bitte in dreifacher Ausfertigung in der Amtsverwaltung in Heist ein.

Hausnummern:

Die Hausnummer bzw. die Hausnummern für Ihr Bauvorhaben erhalten Sie nach vorliegender Baugenehmigung durch die Amtsverwaltung. Die Amtsverwaltung erhält von der Baugenehmigungsbehörde eine Durchschrift der Genehmigung. Die Versorger und die weiteren zuständigen Behörden erhalten einen separaten Hausnummernplan. Für Ihren Bauantrag benötigen Sie keine Hausnummer, hierbei ist die Flurstücknummer sowie die Flur ausreichend. Gerne ergänzen Sie ebenfalls den Straßennamen: Am Säberg.